91看片神器免费,91看片在线观看视频,成人91看片APP,91看片在线观看免费

熱門頁麵: 91看片在线观看视频價格 大型91看片在线观看视频球 磨機工作原理 91看片在线观看视频襯板 濕式91看片在线观看视频 礦石91看片在线观看视频球 磨機型號 節能91看片在线观看视频 溢流91看片在线观看视频
  • 24小時91看片在线观看免费熱線24小時91看片在线观看免费熱線 15311826765
  • 添加微信添加微信 13811510145
  • 公司地址公司地址

    山東省煙台市福山高新技術產業區91看片神器免费街188號

首頁 > 產品中心 > 濃縮機 > 液壓馬達傳動中心濃密機

液壓馬達傳動中心濃密機

液壓馬達傳動中心濃密機

產品簡介:一款中心液壓傳動、液壓自動提耙的濃密機。

處理能力:28~1590 m<sup>2</sup>

產品改進:內徑可達100M

優勢特點:

液壓馬達傳動中心濃密機

安裝維修簡單、方便。

內部構造簡潔,便於液壓、電控係統等件的布置。

可通過調節油泵的排油量,來調節耙架的轉速,以達到最佳狀態。

可實現自動提耙、降耙。

24小時91看片在线观看免费熱線 15311826765

如果您有任何的問題,請通過以下方式聯係91看片神器免费,91看片神器免费將給您更多更好的協助!

產品簡介

濃縮機
  • 主要用於礦山煤泥水或礦漿的澄清和濃縮,以達到脫水的目的。
  • 也可用於化工、冶金等行業進行固液分離的脫水作業。

產品結構

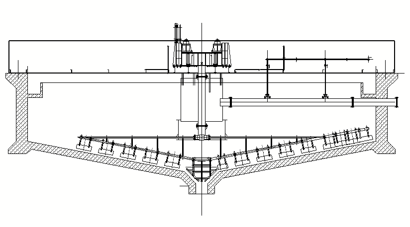
液壓馬達傳動中心濃密機主要是由傳動裝置、橋架、加藥裝置、入料管、固定筒、布料筒、刮板、軸、長耙、短耙、吊杆、電控裝置、液壓站、維修用吊架等組成。

濃縮機

產品FAQ

1、液壓馬達傳動中心濃密機的壓力不足或無壓力的原因是什麽?

(1)溢流閥的調整不當或是溢流閥損壞造成的的壓力不足或無壓,需重新調整溢流閥或跟換溢流閥。

(2)油泵過熱,導致油泵磨損、損壞,又或是油泵的粘度過低造成,需修理、更換油泵,或是使用推薦粘度的液壓軸。

2、機械振動的原因是什麽?

電機和油泵不同軸或是管道振動引起的機械振動,可通過調整同軸度或緊固加裝管卡來改善振動問題。

技術參數

液壓馬達傳動中心濃密機技術參數表

型號 濃縮池內徑m 池中心深度m 沉澱麵積m2 耙架每轉時間min/r 提耙高度mm 處理量t/d 驅動功率kW
NZY-6 6 3.0~3.2 28 2.5~5.0 350 50~100 3
NZY-9 9 3.5~3.8 63.6 3.0~5.0 350 120~175 3
NZY-12 12 3.5~3.8 113 4.0~7.0 350 200~300 4
NZY-15 15 4.0~4.5 176 5.0~10.0 450 350~400 5.5
NZY-18 18 4.0~4.5 254 8.0~12.0 450 600~800 5.5
NZY-20 20 4.0~4.5 314 8.0~12.0 450 800~1000 7.5
NZY-24 24 4.5~5.5 450 9.0~12.0 450 1000~1300 7.5
NZY-30 30 4.5~5.5 706 10.0~14.0 450 1500~1800 11
NZY-38 38 6.5~8.0 1134 15.0~22.0 600 1800~2200 15
NZY-40 40 6.5~8.0 1256 15.0~22.0 600 2200~2400 15
NZY-45 45 6.5~8.0 1590 15.0~22.0 600 2400~2800 15
NZY-53 53 6.5~8.0 2206 15.0~22.0 600 3000~3500 15
NZY-60 60 7.0~8.5 2827 16.0~50.0 600 3500~5000 18.5
NZY-75 75 8.0~10.0 4418 20.0~80.0 800 7500~10000 22
NZY-100 100 8.0~10.0 7853 35.0~80.0 800 10000~15000 30

相關信息



在線留言

您可以在下麵表格填寫您的需求信息,91看片神器免费的技術與銷售人員會盡快與您取得聯係。為保證能及時處理您的信息,請務必準確填寫您的聯係電話!

  • 請您填寫詳細的需求信息:

  • 如果以上信息無法滿足您的需求,請在此填寫您的具體需要。

版權所有 ©山東91看片神器免费礦業集團 2011-2018 魯ICP備93653093號-115 公安網備案魯公網安備 37061102001222號
網站地圖